1 1

1 bed Apartment - Sold Subject to Contract
Holden Mill, Blackburn Road, Bolton
Offers Over £115,000

  • Immaculate Second Floor Apartment
  • Within Grade II Listed Mill Conversion
  • Convenient Transport Links to Manchester via Rail & Road
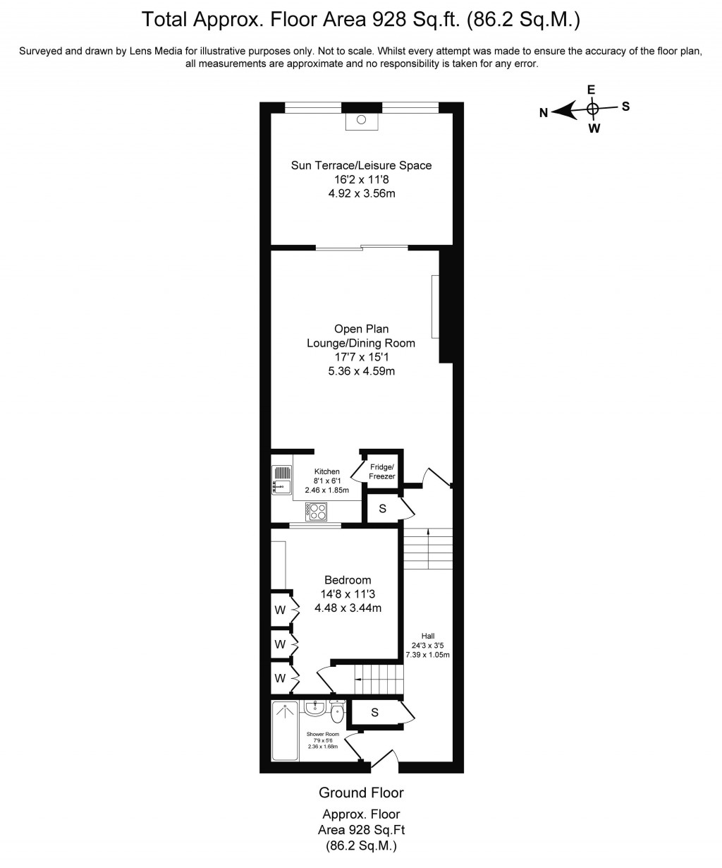
  • Spacious 17' Open Plan Main Living Area with Media Wall
  • Fitted Kitchen with Integrated Appliances
  • 14' Double Bedroom with Fitted Wardrobes
  • Recently Updated Wet Room-Style Shower Room
  • Fabulous 16' Sun Terrace/Leisure Space
  • Gated Development with Secure Allocated Indoor Parking Facilities
  • Available with No Onward Chain

If one is searching for an individual home, then this immaculate one bed, second floor apartment cannot fail to appeal, impressing with its own brand of elegance and opulence, and positively bursting with personality. Whilst its exterior blends seamlessly with its neighbours, exuding character and style in equal measure, one step across the threshold will reveal a fabulously quirky and extravagant home which makes a truly unique statement, with no pandering to conformity.

This delightful residence simply must be viewed to appreciate not only the generous levels of space, but also the thoughtful design, both of the property, but more generally, the development itself, forming part of an exclusive complex, the type of which is normally reserved for the fashionable city centre of Manchester. With a rich heritage of cotton weaving, the former mill town of Bolton was once at the forefront of the world's cotton production and this exciting opportunity lies within one such hub - Holden Mill, a stunning Grade II listed former cotton mill, the last of its type to be constructed in the town in 1927, and which has become a landmark building, famed for its iconic domed tower. Acquired by renowned local builders, P.J. Livesey, this centre of industry, once a building designed for function over aesthetics, has been re-modelled into a new purpose for the 21st century, skilfully and sympathetically converted to a range of executive apartments known as 'The Cottonworks', and providing a real lesson in how to blend character and contemporary flair.

Offering all the appointments one would expect of a contemporary home, the property has lost none of its character, with exposed brickwork and cast-iron supports providing rustic acknowledgements to the building's industrial past, whilst the stylish communal areas create a feeling more of a boutique hotel than a residential building. Aside from the obvious appeal, what sets these properties apart is the private outdoor spaces, an innovative and unique feature to this development, which affords residents their own private sun terrace, and which can be enjoyed all year round due to its sheltered manner of construction, ensuring low maintenance living does not necessarily mean that one is without a space in which to relax with a glass of wine in the sunshine. This flexible area provides potential for a variety of leisure uses, not least the perfect space in which to unwind, for al-fresco dining or perhaps a botanical haven in which to retreat after a stressful day in the office. Situated to the more desirable rear of the building, providing peace and tranquillity to its inhabitants, this particular terrace is quite special indeed, having been enhanced into an extension to the already generous living space to create the feeling of an additional reception room, complete with lighting, heating and electrically operated window shutters, creating the ultimate entertaining/leisure space for even the most populous of gatherings.

'The Cottonworks' is located on the border of Astley Bridge and Sharples, ensuring there are a host of local shops and amenities close at hand, with its convenient location on an arterial route into the town centre, affording superb public transport links, with the vibrant centre of Bolton accessible in minutes, where one can sample the diverse range of high street stores, bars and eateries. Furthermore, the A666 provides direct access to the motorway network, which will be ideal for those with a commute to consider, ensuring major commercial centres, in particular Manchester, are within easy reach.

Having been the subject of a comprehensive programme of works, the property has benefitted from a plethora of aesthetic improvements, including an upgraded heating system, however perhaps the most impressive being the recently installed media wall within the main living area, an addition which has proven to be consistently high on the list of requirements for would-be home buyers.

The generous living spaces extend to in excess of 925 square feet in total and are complemented by the fabulous high ceilings and an abundance of natural light throughout; entering the building via the secure telephone entry system and proceeding via the communal areas up to the lift-serviced second floor, where one can access the private living spaces. The sizeable reception hallway with its feature split level layout impresses immediately, emphasising the feeling of space, whilst there is plenty of storage provided by the built-in cupboards and substantial attic-like storage space which has been cleverly created beneath the mezzanine.. One proceeds through into the 17’ open plan main living area, the epitome of modern day living and a wonderfully sociable environment for entertaining, with guests able to spill out onto that superb 16' decked sun terrace via the uPVC double glazed patio doors for a cocktail or two in those warm summer evenings. The feature cast-iron pillars offer a reminder of the building’s industrial heritage, contrasting with the warm and inviting ambience.. The kitchen is fitted with a range of sleek wall and base units in high-gloss white, with contrasting marble-effect laminated work surfaces and comes equipped with a host of integrated appliances, including a double electric oven, halogen hob with overhead extractor canopy, fridge/freezer, dishwasher and washing machine.

The 14' bedroom benefits from a range of built-in furniture and overlooks the main living space, creating a trendy loft-style feel, whilst the accommodation is completed by the smart, recently updated wet room-style shower room, which comprises of close-coupled WC, vanity wash hand basin and oversized walk-in multi-jet shower.

Externally, the gated development affords a real feeling of exclusivity, approached via electronically operated gates, with beautifully maintained communal gardens and secure allocated indoor parking facilities. A perfect opportunity for a first time buyer, offered with the additional benefit of no onward chain and on a fully or partially furnished basis, if desired, we are certain that this lovely home will be swiftly secured and would highly recommend an early inspection to fully appreciate its turn-key presentation, as well as the sociable community, timeless luxury and lifestyle which 'The Cottonworks' can offer.

- Tenure: Leasehold
- Lease Term: 999 years (less 1 day) from 12th May, 1924
- Years Remaining on Lease: 898
- Ground Rent Payable: £150.00 p.a.
- Service Charge Payable: TBC
- Council Tax: Band A

Floorplans For Holden Mill, Blackburn Road, Bolton
EPC For Holden Mill, Blackburn Road, Bolton
Arrange a viewing for Holden Mill, Blackburn Road, Bolton

For further details on this property please call us on:
01204 800292

Download PDF Arrange Viewing

Share