1 1

1 bed Apartment - Sold Subject to Contract
Holden Mill, Blackburn Road, Bolton
Offers Over £115,000

  • Immaculately Presented Fourth Floor Apartment
  • Within Grade II Listed Mill Conversion
  • Convenient Transport Links to Manchester via Rail & Road
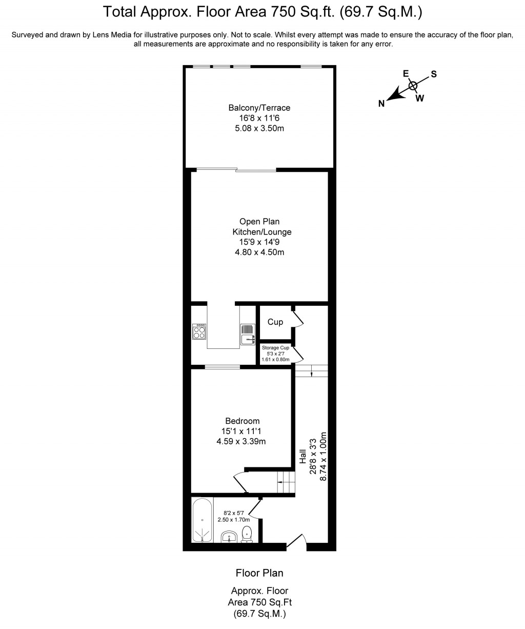
  • Spacious 15' Open Plan Main Living Area
  • Fitted Kitchen with Integrated Appliances
  • 13' Double Bedroom with Brand New Carpet
  • Smart Three-Piece Villeroy & Boch Bathroom Suite
  • Fabulous 16' Sun Terrace with Delightful Views
  • Gated Development with Secure Allocated Indoor Parking Facilities
  • Available with No Onward Chain

Exuding character and style in equal measure, this immaculately presented one bed, fourth floor apartment simply must be viewed to appreciate not only the generous levels of space, but also the thoughtful design, both of the property, but more generally, the development itself, forming part of an exclusive complex, the type of which is normally reserved for the fashionable city centre of Manchester.

With a rich heritage of cotton weaving, the former mill town of Bolton was once at the forefront of the world's cotton production and this exciting opportunity lies within one such hub - Holden Mill, a stunning Grade II listed former cotton mill, the last of its type to be constructed in the town in 1927, and which has become a landmark building, famed for its iconic domed tower. Acquired by renowned local builders, P.J. Livesey, this centre of industry, once a building designed for function over aesthetics, has been re-modelled into a new purpose for the 21st century, skilfully and sympathetically converted to a range of executive apartments known as 'The Cottonworks', and providing a real lesson in how to blend character and contemporary flair.

Offering all the appointments one would expect of a modern home, the property has lost none of its character, with exposed brickwork and cast iron supports providing rustic acknowledgements to the building's industrial past, whilst the stylish communal areas create a feeling more of a boutique hotel than a residential building. Aside from the obvious appeal, what sets these properties apart is the private outdoor spaces, an innovative and unique feature to this development, which affords residents their own private sun terrace, and which can be enjoyed all year round due to its sheltered manner of construction, ensuring low maintenance living does not necessarily mean that one is without a space in which to relax with a glass of wine in the sunshine. Acting as an extension to the already generous living space, this flexible area provides potential for a variety of leisure uses, not least the perfect space in which to unwind, for al-fresco dining or perhaps a botanical haven in which to retreat after a stressful day in the office. Furthermore, this particular apartment is situated to arguably the more desirable rear of the building, providing peace, tranquillity and delightful views over surrounding countryside and as far afield as Manchester, as well as affording some stunning sunrises from its Easterly aspect.

'The Cottonworks' is located on the border of Astley Bridge and Sharples, ensuring there are a host of local shops and amenities close at hand, with its convenient location on an arterial route into the town centre, affording superb public transport links, with the vibrant centre of Bolton accessible in minutes, where one can sample the diverse range of high street stores, bars and eateries. Furthermore, the A666 provides direct access to the motorway network, which will be ideal for those with a commute to consider, ensuring major commercial centres, in particular Manchester, are within easy reach.

The apartment itself is an absolute delight and cannot fail to impress, presented to a lovely standard throughout and offering a perfect opportunity for those looking for an easy move into a home in which they simply need to move in their belongings. Furthermore, this particular home benefits from a larger floorplan than many of its fellow one bed counterparts, affording even more generous living spaces and particularly noticeable within the kitchen area, extending to circa 750 square feet in total and complemented by the fabulous high ceilings, an abundance of natural light and the neutrality of the décor on display throughout.

One enters the building via the secure telephone entry system and proceeds via the communal areas up to the lift-serviced fourth floor, where one can access the private living spaces; entering via the sizeable reception hallway, with its feature split level layout impressing immediately, emphasising the feeling of space, whilst there is plenty of storage provided by the built-in cupboards. Linking the living areas seamlessly, the laminated wooden flooring leads through into the bright open plan main living space, the epitome of modern day living and a wonderfully sociable environment for entertaining, with guests able to spill out onto the fabulous 16' decked sun terrace via the uPVC double glazed patio doors for a cocktail or two in those warm summer evenings. The feature cast-iron pillars create an authentic industrial ambience and a real feeling of heritage which contrasts with the contemporary living space. The kitchen is fitted with a range of sleek wall and base units in high-gloss black, with complementary laminated work surfaces and comes equipped with a host of integrated appliances, including a Neff electric oven, halogen hob with overhead extractor canopy, fridge/freezer, dishwasher and recently replaced Indesit washing machine.

The 15' bedroom benefits from a brand new carpet and overlooks the main living space, creating a trendy loft-style feel, whilst the accommodation is completed by the smart bathroom, which is partially tiled and fitted with a quality three-piece Villeroy and Boch suite in classic white, comprising of WC, pedestal wash hand basin and tiled bath with overhead shower attachment.

Externally, the gated development affords a real feeling of exclusivity, approached via electronically operated gates, with beautifully maintained communal gardens and secure allocated indoor parking facilities. A perfect opportunity for a first time buyer and offered with the additional benefit of no onward chain, we are certain that this gorgeous home will be swiftly secured and would highly recommend an early inspection to fully appreciate its turn-key presentation, as well as the sociable community, timeless luxury and lifestyle which 'The Cottonworks' can offer.

NB: In accordance with Section 21 of the Estate Agent Act 1979, we hereby disclose to all relevant parties that a connected person has a personal interest in the sale of this property.

- Tenure: Leasehold
- Lease Term: 999 years (less 1 day) from 12th May, 1924
- Years Remaining on Lease: 898
- Ground Rent Payable: £150.00 p.a.
- Service Charge Payable: £2,991 p.a.
- Council Tax: Band A

Floorplans For Holden Mill, Blackburn Road, Bolton
EPC For Holden Mill, Blackburn Road, Bolton
Arrange a viewing for Holden Mill, Blackburn Road, Bolton

For further details on this property please call us on:
01204 800292

Download PDF Arrange Viewing

Share